Van Duren Makelaardij
Van Duren Makelaardij
English
Verkocht:Van Cuycklaan 9, 2343 AG Oegstgeest - Foto
Verkocht
+57

Van Cuycklaan 9 2343 AG Oegstgeest

  • Woonhuis
  • 5 kamers
  • 4 slaapkamers
  • 1 badkamer
  • Bouwjaar 1951
  • 192 m² perceeloppervlakte
  • 106 m² gebruiksoppervlakte
  • B Energielabel B

Beschrijving

Ruime, instapklare, goed onderhouden tussenwoning met zonnige tuin in de geliefde Gruneriebuurt.

In de Van Cuycklaan, een rustige straat van de populaire Gruneriebuurt ligt deze uitgebouwde tussenwoning met verrassend veel ruimte, een moderne afwerking en een heerlijk vrije, grote achtertuin op het zuiden. Een ideale gezinswoning waar comfort en licht centraal staan.

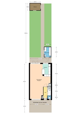
Indeling

De uitgebouwde begane grond biedt een royale leefruimte met volop daglicht en een moderne open keuken (2024) die van alle gemakken is voorzien, te weten een Bora-inductie kookplaat, vaatwasser, koelkast, combi-oven en zelfs een wijnklimaatkast. De keuken biedt naar alle kanten contact met de woonkamer. Dankzij de uitbouw is er een fijne, open sfeer ontstaan die perfect is voor zowel het dagelijkse gezinsleven als gezellige avonden met vrienden. Vanuit de woonkamer zijn er dubbele openslaande deuren en een aparte loopdeur naar de achtertuin.

Vanuit de keuken is er met een enkele stap toegang tot de recent tot bijkeuken verbouwde schuur. Deze voormalige schuur is (deels) geïsoleerd en in 2025 voorzien van een stenen aanrechtblad en keukenmeubel met veel bergruimte. Onder het aanrechtblad is ruimte voor een wasmachine en een vriezer/droger. In de bijkeuken bevindt zich ook de recente (2021) verwarmingsketel (combi).

Eerste verdieping

De eerste etage is optimaal ingericht. De badkamer aan de achterzijde is in 2014 volledig vernieuwd met een modern lighoekbad, toilet en wastafelmeubel. Daarnaast is een mooie zonnige kinder/tienerkamer. De ouderslaapkamer ligt aan de voorzijde, evenals een werk- annex babykamer.

Tweede verdieping

De woning beschikt daarnaast over een grote zolderkamer met nokverhoging, waardoor er uitzonderlijk veel ruimte en licht is. De ramen over de volledige achterzijde zorgen voor een prettige lichtinval en maken deze verdieping uitermate geschikt als extra slaapkamer, werkkamer of hobbyruimte. Achter het schuine dak is met schuifdeuren nog veel bergruimte verwerkt.

Tuin

De diepe, met smaak verzorgde groene achtertuin op het zuiden is een absolute plus: zonnig, vrij gelegen en zonder achterburen, wat zorgt voor optimale privacy. Achterin de tuin bevindt zich een poort naar de achterom en een tuinschuur voor fietsen, tuingereedschap etc.

Bijzonderheden

Verder is de woning volledig voorzien van dubbel glas, uitgerust met 6 zonnepanelen en daarmee energiezuinig en toekomstbestendig. Dat blijkt ook wel uit het zeer recent opgemeten energielabel B. Het systeem is zo ingericht en geschakeld dat het gereed is om een warmtepomp te installeren.
Dit is een ruime, goed onderhouden en instapklare woning op een fijne locatie met alle ingrediënten voor comfortabel wonen. Absoluut een bezichtiging waard!

Bijzonderheden:
- Uitgebouwde, goed onderhouden woning
- Energielabel B
- Recent gemoderniseerde keuken
- Gemoderniseerde badkamer
- Nokverhoging op de 2e etage
- Zeer vrij gelegen diepe achtertuin op het zuiden vanwege het ontbreken van directe achterburen
- 6 zonnepanelen

Kaart

Kenmerken

Overdracht

Referentienummer
00095
Vraagprijs
€ 725.000,- k.k.
Status
Verkocht
Aanvaarding
In overleg
Aangeboden sinds
Donderdag 29 januari 2026
Laatste wijziging
Zaterdag 28 februari 2026

Bouw

Type object
Woonhuis, eengezinswoning, tussenwoning
Soort bouw
Bestaande bouw
Bouwperiode
1951
Dakbedekking
Dakpannen
Type dak
Zadeldak
Isolatievormen
Dakisolatie
Dubbel glas
Muurisolatie

Oppervlaktes en inhoud

Perceeloppervlakte
192 m²
Woonoppervlakte
106,2 m²
Woonkameroppervlakte
35,21 m²
Keukenoppervlakte
8,76 m²
Inhoud
380 m³
Oppervlakte externe bergruimte
10,8 m²
Oppervlakte gebouwgebonden buitenruimte
3 m²

Indeling

Aantal bouwlagen
3
Aantal kamers
5 (waarvan 4 slaapkamers)
Aantal badkamers
1 (en 1 apart toilet)

Locatie

Ligging
Aan rustige weg
Beschutte ligging
In woonwijk

Tuin

Type
Achtertuin
Hoofdtuin
Ja
Oriëntering
Zuiden
Heeft een achterom
Ja
Staat
Prachtig aangelegd
Tuin 2 - Type
Voortuin
Tuin 2 - Oriëntering
Noorden
Tuin 2 - Staat
Goed onderhouden

Energieverbruik

Energielabel
B

CV ketel

CV ketel
Nefit
Warmtebron
Gas
Bouwjaar
2022
Combiketel
Ja
Eigendom
Eigendom

Uitrusting

Warm water
CV-ketel
Verwarmingssysteem
Centrale verwarming
Keukenvoorzieningen
Inbouwapparatuur
Kookeiland
Badkamervoorzieningen
Ligbad
Toilet
Wastafelmeubel
Tuin aanwezig
Ja
Heeft schuur/berging
Ja
Heeft zonwering
Ja
Heeft zonnepanelen
Ja

Kadastrale gegevens

Kadastrale aanduiding
Oegstgeest B 2340
Perceeloppervlakte
192 m²
Omvang
Geheel perceel
Eigendomsituatie
Eigen grond

Brochure(s) en overige bijlagen

Van Cuycklaan 9, 2343 AG OEGSTGEEST (1) Download