Van Duren Makelaardij
Van Duren Makelaardij
English
Verkocht:Kaarsenmakersdam 6, 2361 GJ Warmond - Foto
Verkocht
+36

Kaarsenmakersdam 6 2361 GJ Warmond

  • Woonhuis
  • 2 kamers
  • 1 slaapkamer(s)
  • 1 badkamer
  • Bouwjaar 1906
  • 73 m² perceeloppervlakte
  • 50 m² gebruiksoppervlakte
  • F Energielabel F

Beschrijving

Aan de rustige Kaarsenmakersdam, om de hoek van de Dorpsstraat, ligt deze fijne tussenwoning met aan 2 zijden tuin. Daardoor heb je de ideale combinatie van dorpse rust én de levendigheid. Supermarkten, winkels, scholen, gezellige horeca en sportfaciliteiten zijn allemaal op loopafstand. Binnen een paar minuten sta je op recreatie-eiland Koudenhoorn: een waar paradijs voor wandelaars, strandliefhebbers, watersporters en gezinnen met kinderen. En wil je de stad opzoeken? Het bruisende centrum van Leiden ligt op slechts een kwartiertje fietsen.

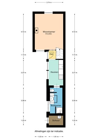
Indeling

Aan de straatkant door het hek kom je in de tuin. Daar is ook de voordeur. Via de hal kom je links in de woonkamer, die aan 2 kanten grote ramen heeft en daardoor heel erg licht is. De woonkamer heeft een schouw waar een mooie kachel kan staan. De ouderwets hoge plafonds geven een heel prettige en rustige sfeer aan deze ruimte.
Aan de andere kant van de hal is de keuken. Deze is nog heel keurig en vooral de vele kastruimte maakt dat je hier prettig kan koken. Ook de keuken heeft een groot raam naar de tuin. Via de keuken kom je in de achtergelegen badkamer, die eenvoudig is ingericht met een douche, wastafel en toilet. Onder de wastafel is voldoende ruimte om een wasmachine en een wasdroger neer te zetten.

Eerste verdieping

De trap naar boven vanuit de gang is stevig en heeft nog een kleine verborgen bergplaats onder het schuine dak voor spullen die je iets minder vaak gebruikt. Eenmaal boven dan kan je niet anders dan je heel prettig voelen in deze zeer ruime slaapkamer. Ooit waren dit 2 kamers, maar de indeling op deze manier voelt veel fijner aan.

Bijzonderheden

De woning heeft aan de voorzijde een grotendeels betegelde tuin op het Zuidwesten, met een aangebouwde schuur waar de cv-ketel hangt. De tuin biedt volop privacy en biedt een goede basis om een sfeervolle buitenruimte te realiseren. Via het grote raam van de woonkamer kan je ook naar de tuin aan de oostzijde, die op de Baan uitkomt.

Bijzonderheden:
• Karakteristieke tussenwoning
• Woonoppervlakte ca. 50 m², perceel 73 m²
• Tuin aan de voorzijde en een tuin die via het raam in de woonkamer bereikbaar is aan de Baan
• Gelegen in het dorpscentrum van Warmond
• Nabij winkels, horeca, park en water

Kaart

Kenmerken

Overdracht

Referentienummer
00092
Vraagprijs
€ 375.000,- k.k.
Status
Verkocht
Aanvaarding
In overleg
Aangeboden sinds
Dinsdag 23 september 2025
Laatste wijziging
Vrijdag 10 oktober 2025

Bouw

Type object
Woonhuis, eengezinswoning, tussenwoning
Soort bouw
Bestaande bouw
Bouwperiode
1906
Dakbedekking
Dakpannen
Type dak
Zadeldak

Oppervlaktes en inhoud

Perceeloppervlakte
73 m²
Woonoppervlakte
50 m²
Woonkameroppervlakte
17,65 m²
Keukenoppervlakte
6,44 m²
Inhoud
176 m³
Oppervlakte externe bergruimte
2,5 m²

Indeling

Aantal bouwlagen
2
Aantal kamers
2 (waarvan 1 slaapkamer)
Aantal badkamers
1

Locatie

Ligging
In centrum

Tuin

Type
Achtertuin
Hoofdtuin
Ja
Oriëntering
Zuid-west
Heeft een achterom
Ja
Staat
Normaal
Tuin 2 - Type
Achtertuin
Tuin 2 - Oriëntering
Noord-oost
Tuin 2 - Staat
Normaal

Energieverbruik

Energielabel
F

CV ketel

Warmtebron
Gas
Eigendom
Eigendom

Uitrusting

Warm water
CV-ketel
Verwarmingssysteem
Centrale verwarming
Badkamervoorzieningen
Douche
Toilet
Wasmachineaansluiting
Wastafel
Tuin aanwezig
Ja
Heeft schuur/berging
Ja

Kadastrale gegevens

Kadastrale aanduiding
Teylingen D 4530
Perceeloppervlakte
73 m²
Omvang
Geheel perceel
Eigendomsituatie
Eigen grond

Brochure(s) en overige bijlagen

Brochure Kaarsenmakersdam 6 - Warmond.pdf Download